ZHJQ 电动调节球阀
电动调节球阀采用HQ型智能电动执行器及二通球阀阀体组成,适用于两位切断、调节的场合,执行器可采用国产或进口执行器,采用一体化结构,电动执行机构内置伺服系统,输入控制信号(4~20mADC或1~5VDC)及单相电源即可控制运转,智能型电动球阀具有功能强、体积小、轻便宜人、性能可靠、配套简单、流通能力大、特别适合于介质是粘稠,含颗粒,纤维性质的场合。目前电动调节球阀广泛应用于食品、环保、轻工、石油、造纸、化工、教学和科研设备、电力等行业的工业自动控制系统中。
电动调节球阀主要技术参数
阀体
| 阀体形式 | 直通铸造球阀 |
| 公称通径 | DN15~300mm |
| 公称压力 | PN1.6、2.5、4.0、6.4 MPa;ANSI 150、300LB ;JIS 10、20、30K |
| 法兰标准 | JIS、ANSI、GB、JB、HG等 |
| 连接形式 | 法兰式、螺纹式 |
| 阀盖形式 | 一体式 |
| 压盖型式 | 压盖压紧式 |
| 密封填料 | V型聚四氟乙烯填料、柔性石墨填料等 |
阀内件
执行机构
| 执行器型号 | DSR、3810R、DZW、HQ、PSQ |
| 主要技术参数 | 电源电压:220V/50Hz、380V/50Hz、输入信号:4-20mA或1-5V-DC、输出信号:4-20mA·DC |
| 防护等级:相当IP65(或IP67)、隔爆标志:ExdⅡBT4、手操功能:手柄 |
| 环境温度:-25~+70℃、环境湿度:≤95% |
注:如需详细执行器参数,请进入电动执行器页面进行查阅。
电动调节球阀主要性能指标
| 公称通径 DN(mm) | 15 | 20 | 25 | 32 | 40 | 50 | 65 | 80 | 100 | 125 | 150 | 200 | 250 | 300 |
| 额定流量系数KV | 21 | 38 | 72 | 112 | 170 | 273 | 384 | 512 | 940 | 1452 | 2222 | 3589 | 5128 | 7359 |
| 允许压差(MPa) | ≤ 公称压力 |
| 动作范围 | 0~90°、0~360° |
| 泄露量Q | 按GB/T4213-92,小于额定KV0.01% |
| 基本误差 | ±1% |
| 回差 | ±1% |
| 死区 | ≤1%(可调) |
| 可调范围 | 250:1 | 350:1 |
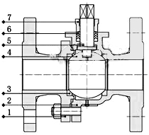
电动调节球阀主要零件材料
| 1 | 左阀体 | WCB、CF8、CF8M、CF3M |  |
| 2 | 右阀体 | WCB、CF8、CF8M、CF3M |
| 3 | 阀座 | PEFE、PPL、304、316 |
| 4 | 球体 | 2Cr13、304、316 |
| 5 | 阀杆 | 2Cr13、304、316 |
| 6 | 密封填料 | PTFE/柔性石墨 |
| 7 | 填料压盖 | WCB、CF8、CF8M、CF3M |